Immobiliendetails

*** Modernes Gewerbeobjekt in Stadtrandlage von Krumbach ***

86381 Krumbach

Daten und Fakten zur Immobilie

Baujahr

2018

Objektbeschreibung

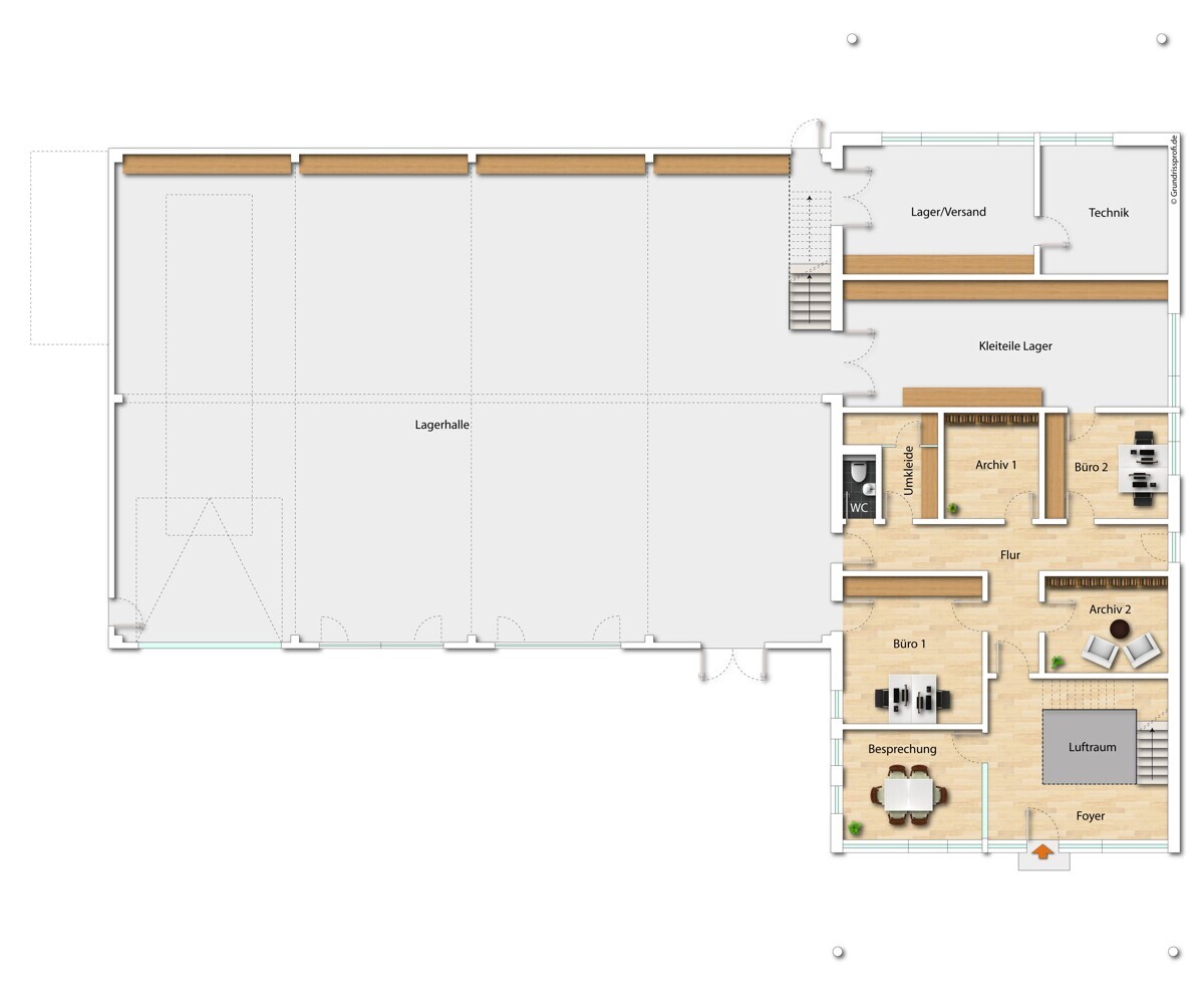
In Stadtrandlage von Krumbach im Herzen von Bayrisch-Schwaben ist diese neuwertige Gewerbeanlage im Angebot. Das Gebäude besteht aus einer Lager-Fertigungshalle und einem zweigeschossigen Büro- und Verwaltungstrakt. Die Halle in Holzskelettbauweise mit Sandwicheindeckung verfügt über ein großes Einfahrtstor (schwellenarm mit Einfahrtshöhe von über 4,40m) und hat einen Betonboden, in den eine temperierende Fußbodenheizung eingelassen ist. Sie hat eine Fläche von ca. 22 x 15 m. Eine Kranbahn ist aktuell nicht installiert, wurde jedoch bei den Planungen berücksichtigt. Die Halle hat im Mittel eine Höhe von ca. 5,00 m. Der Verwaltungstrakt ist ca. 11 x 22 m groß und in Holzständerbauweise errichtet und modern ausgestattet. Neben Fußbodenheizung, Belüftungsanlage und Netzwerklösungen, sind die Räume lichtdurchflutet und verfügen teilweise über eine zusätzliche Klimatisierung. Der Trakt hat eine keramische Fassadenverkleidung und sinnvolle Raumstrukturen in EG und OG zu bieten mit repräsentativen Büroräumen und durchdachten Funktionsbereichen. Das Gebäudedach ist mit einer ca. 73 kWp Photovoltaikanlage belegt, die über ein SENEC-Energiemanagement mit 10 kW Speicher verfügt. Die Liegenschaft steht nach Absprache zur Verfügung. Gerne unterhalten wir uns über eine Lease-Back-Vereinbarung. Haben wir Ihr Interesse geweckt, dann kontaktieren Sie uns gerne über das Kontaktformular. Bitte geben Sie dabei eine Rückrufnummer an.

Objektdaten

  • Objektart
    Hallen/Lager/Produktion
  • Objekttyp
    Industriehalle und Freifläche
  • Vermarktungsart
    Kauf
  • Objektnummer
    1014-26
  • Kaufpreis
    1.849.000,00 €

Kaufpreis

1.849.000,00 €
Kontaktanfrage

Energieausweis

  • Energieausweistyp
    Verbrauchsausweis
  • Gültig bis
    21.01.2036
  • Baujahr
    2018
  • Primärenergieträger
    Luft/Wasser Wärmepumpe
  • Energiebedarf
    10,4 kWh/(m²a)
  • Energieeffizienzklasse
    A+

Objektanfrage

Ihr Name*

Ihre E-Mail Adresse*

Ihre Adresse*

Ihre Telefonnummer*

Ihre Nachricht*

Wenn Sie das Kontaktformular zur Übermittlung Ihrer Anfrage benutzen, erklären Sie sich damit einverstanden, dass wir Sie per Telefon und/oder E-Mail bezüglich Ihrer Anfrage sowie dass Sie mit der dazu notwendigen Speicherung Ihrer Daten einverstanden sind.