Immobiliendetails

*** 2-Zimmer-Wohnung mit Süd-/Westterrasse und Gartenanteil - Neubau Mehrfamilienhaus mit 11 Einheiten ***

87727 Babenhausen

Daten und Fakten zur Immobilie

Baujahr

2026

Wohnfläche

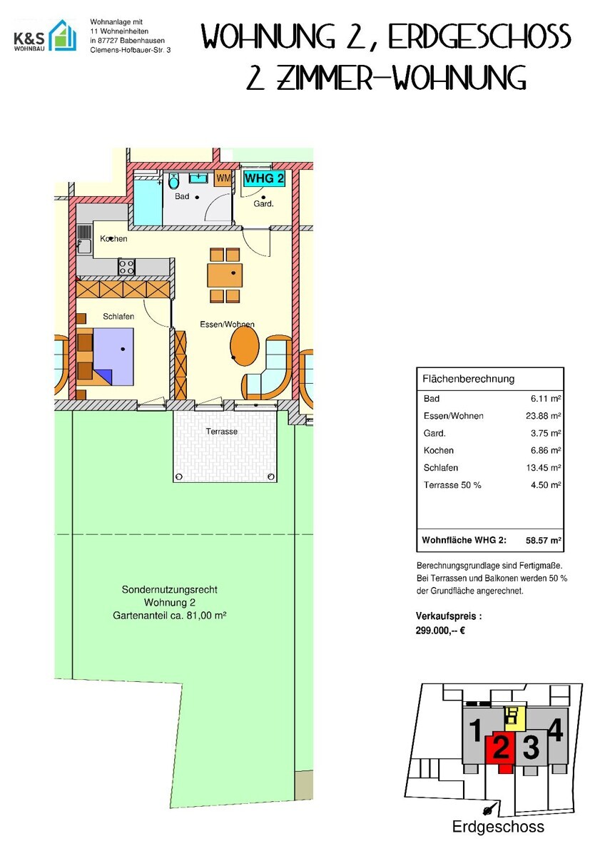
ca. 59 m²

Zimmer

2

Objektbeschreibung

Im Herzen von Babenhausen entsteht in den nächsten Monaten dieses Neubauprojekt. Unser regional verorteter Partner wird hier 11 Wohneinheiten in Massivbauweise errichten und zuverlässig für die Käufer fertigstellen. Zahlreiche Referenzgebäude in der Region bezeugen die seriöse und kompetente Ausführung, die durch ein langjähriges Unternehmernetzwerk aus dem Umfeld erbracht wird. Freuen Sie sich auf funktionale Grundrisse, barrierearme Gestaltung und eine insgesamt hervorragende Ausstattung. Lichtverwöhnte, helle Wohn- und Schlafräume, Fußbodenheizung, bodengleiche Duschbereiche, Video-Klingelanlage, Tiefgarage, Glasfaseranschluss, Aufzuganlage, Abstellräume, Fahrradkeller, ausreichend Stellplätze, Wertansätze bei der Bemusterung, die eine gute Ausstattung ohne Zuzahlungen auch zulassen, sowie Balkone und Terrassen, die echte Wohnraumerweiterungen darstellen. Das Ganze wird eng durch die eigene Bauleitung begleitet. Im Zuge des Baufortschritts können noch kleinere Änderungen umgesetzt werden. Derzeit sind noch viele Wohnungsoptionen offen, informieren Sie sich rasch. Die Wohnanlage überzeugt nicht nur durch ihre Lage und Ausstattung, sondern auch durch ihre Sicherheit: Sie befindet sich nicht im Hochwassergebiet (HQ 100). Gerne zeigen wir Ihnen Referenzgebäude des Bauträgers und stehen für Standortbesichtigungen und eine Beratung zum Bauvorhaben und den aktuellen Finanzierungsmöglichkeiten gerne zur Verfügung.

Objektdaten

  • Objektart
    Wohnung
  • Objekttyp
    Erdgeschosswohnung
  • Vermarktungsart
    Kauf
  • Objektnummer
    984-25_02
  • Anzahl Zimmer
    2
  • Anzahl Badezimmer
    1
  • Kaufpreis
    299.000,00 €
  • Wohnfläche
    ca. 59 m²
  • Endenergiebedarf
    96 kWh/(m²a)

Kaufpreis

299.000,00 €
Kontaktanfrage

Energieausweis

  • Energieausweistyp
    Bedarfsausweis
  • Gültig bis
    18.09.2034
  • Baujahr
    2025
  • Primärenergieträger
    Pelletheizung
  • Energieeffizienzklasse
    C

Objektanfrage

Ihr Name*

Ihre E-Mail Adresse*

Ihre Adresse*

Ihre Telefonnummer*

Ihre Nachricht*

Wenn Sie das Kontaktformular zur Übermittlung Ihrer Anfrage benutzen, erklären Sie sich damit einverstanden, dass wir Sie per Telefon und/oder E-Mail bezüglich Ihrer Anfrage sowie dass Sie mit der dazu notwendigen Speicherung Ihrer Daten einverstanden sind.